Cabaña en Sumava

Enclavada en la naturaleza virgen del Parque Nacional Sumava, esta casa de vacaciones combina el estándar de una vivienda familiar con la esencia de una cabaña tradicional local. El diseño se adapta a las estrictas regulaciones del parque, adoptando una forma tradicional integrada con el entorno.

El carácter típico de la región se refleja en el diseño de esta vivienda, que incluye un ancho significativo, orientación paralela a las curvas del terreno, mínima intervención paisajística, ausencia de cercas, rizalites sobresalientes y un techo a dos aguas con media pendiente.

Para aprovechar las vistas panorámicas, se incorporaron grandes ventanales que enmarcan escenas únicas, desde los horizontes distantes hasta detalles cercanos como las raíces de los abedules.

Se utilizaron materiales tradicionales que respetan la estética local, como madera teñida en tonos oscuros para la fachada y piedra reciclada para el zócalo, muros de contención y terrazas. Las aberturas de ventilación, inspiradas en las contraventanas verdes típicas de la región, complementan los ventanales sin marco, aportando un equilibrio entre tradición y modernidad.

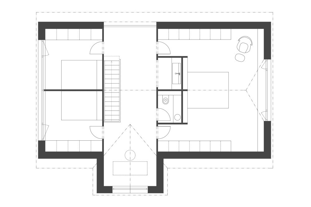
El interior sigue la distribución típica de una casa de campo. En la planta baja, la zona de estar, con una chimenea y vistas al sur, se conecta con la entrada principal, mientras que la zona de servicios y la entrada secundaria se ubican al norte. El ático alberga tres habitaciones, un baño y un pasillo.

La estructura se construyó con paneles de madera del sistema Novatop, dejando visibles los tableros de abeto en las paredes interiores y el revestimiento del armazón. La fachada utiliza un revestimiento de abeto teñido en negro-marrón, mientras que el techo permanece cubierto con chapa de aluminio plegada en gris oscuro.

Los ventanales, con triple acristalamiento sin marco, se complementan con aberturas de perfil de aluminio. Los suelos combinan pizarra negra de gran formato en la planta baja y abeto nórdico en el ático. Los muebles integrados fueron elaborados en madera maciza de abeto y arce, con estructuras de acero negro, destacando una mesa de comedor de fresno rústico.

El sistema de calefacción utiliza suelo radiante alimentado por una bomba de calor aire-agua. La casa dispone de su propio pozo y fosa séptica.

FICHA TÉCNICA:

Estudio: Markéta Cajthamlová, Architektonická projekční kancelář.
Autoras: Markéta Cajthamlová y Petra Pelešková.
Ubicación: Sumava, República Checa.
Construcción de madera: POP BUILDING.
Cimentaciones: JIRAM.
Fotografía: Petr Polák.