The Sax en obra
El martes 28 de octubre de 2025 en la ciudad de Róterdam, los desarrolladores BPD y Synchroon, y el estudio MVRDV celebraron el inicio de la construcción de The Sax. Ubicado en Wilhelminapier, el proyecto comprende dos torres —con un total de 916 departamentos— unidas por una viga dorada.
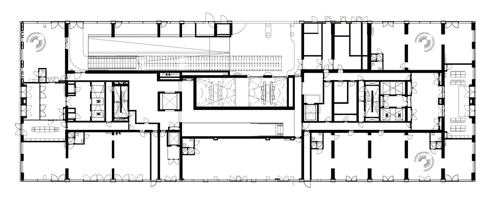
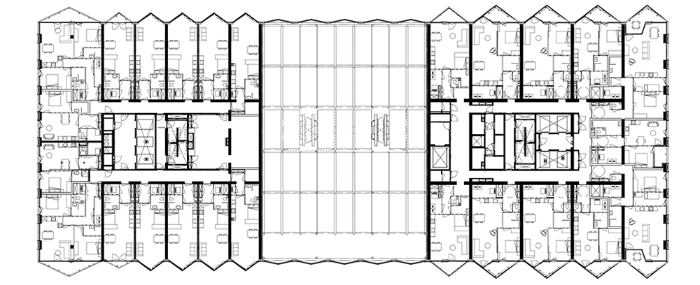
Róterdam ya cuenta con una destacada colección de edificios en altura, con una concentración particular en Wilhelminapier, sede de algunos de los rascacielos más reconocibles de la ciudad. The Sax es una incorporación singular a este conjunto: un edificio plateado compuesto por dos torres residenciales, la “Havana”, de 180 metros y 55 pisos, y la “Philadelphia”, de 82 metros y 26 pisos. Ambas permanecen conectadas mediante una viga dorada que alberga seis plantas de viviendas y una terraza en la azotea a 100 metros de altura, accesible para todos los residentes.
La silueta distintiva, inspirada en un saxofón, junto con la fachada que se ondula al acercarse a la cima de las torres, reflejan el carácter jazzístico de Róterdam. El edificio se integra con su entorno, y desde distintos ángulos la luz sobre la fachada genera un efecto cambiante, acentuado por el juego de miradores y balcones ondulados.
Con 916 departamentos —822 en alquiler y 94 en propiedad— más una amplia variedad de tipologías, The Sax responde a la alta demanda de viviendas nuevas y asequibles en el centro de la ciudad. No solo será el edificio residencial más grande del muelle, ofreciendo la mayor cantidad de unidades en un espacio relativamente reducido, sino que también incluirá el mayor número de viviendas para la clase media de Róterdam: 458 unidades, exactamente la mitad, estarán en el segmento de alquiler accesible.
The Sax aspira a ser un vecindario vertical, una comunidad con servicios y espacios compartidos. Los residentes podrán encontrarse en diversos lugares: desde salas de estar comunes hasta la terraza colectiva sobre la viga dorada que conecta ambas torres, con vistas espectaculares del puerto adyacente de Rijnhaven.
Un basamento transparente de nueve metros de altura en las esquinas del edificio aportará vitalidad al nivel de la calle. Mientras los pisos inferiores dejan espacio para nuevos árboles en Antoine Platekade, los balcones, a medida que ascienden, se hacen más profundos e incorporan miradores, permitiendo disfrutar de las vistas y fomentar la vida social entre vecinos. A partir del nivel de la viga dorada, los balcones de la torre más alta parecen ondular, otorgando al edificio un ritmo vibrante y generando una variedad de tamaños de terrazas.
“Con 916 viviendas, The Sax representa una densificación significativa para la ciudad. Wilhelminapier será el área más densamente edificada de los Países Bajos, además de poseer un carácter arquitectónico muy interesante”, señala a nuestro News Ingeniería Estructural Jacob van Rijs, socio fundador de MVRDV. “Por encima de todo, The Sax será un edificio vibrante y distintivo que embellecerá el perfil del muelle. Los distintos ángulos permitirán que la luz incida de forma diferente sobre la fachada metálica, haciendo que el edificio cambie de color según la hora del día. La transición gradual de la base a la cima hace que The Sax, a pesar de su tamaño, resulte a la vez robusto y delicado, como un músico que puede hacer sonar el saxofón con fuerza o de manera sutil y suave”.
Como edificio colectivo con una variedad de servicios, The Sax pone especial énfasis en la movilidad sostenible y compartida. Se encuentra a pocos pasos de las paradas de metro y tranvía de la ciudad. En su basamento ofrecerá estacionamientos para 1.800 bicicletas en un centro de movilidad común. Además, contará con un parking totalmente automatizado para 330 automóviles, el primero de su tipo en los Países Bajos. El edificio dispondrá de 1.200 metros cuadrados destinados a usos comerciales, incluyendo servicios y equipamientos deportivos.
The Sax está siendo desarrollado por BPD, Bouwfonds Gebiedsontwikkeling, y Synchroon, con diseño de MVRDV. El proyecto es financiado por Achmea Real Estate en representación del fondo de pensiones PME y por NLV en nombre del fondo PMT. La construcción estará a cargo de BAM Bouw en Techniek.
The Sax constituye la pieza final en el desarrollo del sector sur de Wilhelminapier. Se espera que las torres se encuentren terminadas en el año 2030, sumando un nuevo hito arquitectónico al horizonte de Róterdam.





























