The Langston
El edificio The Langston, en Washington D.C., constituye un ejemplo singular de ingeniería estructural aplicada a contextos urbanos de alta complejidad. La experiencia fue documentada por la ingeniera Monika Crandall, PE, LEED AP, en el artículo “Concrete: Getting the Hang of It” publicado en Structure.
El crecimiento urbano y la densificación de las ciudades contemporáneas imponen a la ingeniería estructural desafíos que, en muchos casos, obligan a replantear las formas tradicionales de construir. Es el caso del edificio The Langston, ubicado en el barrio de Shaw, en Washington D.C., Estados Unidos.
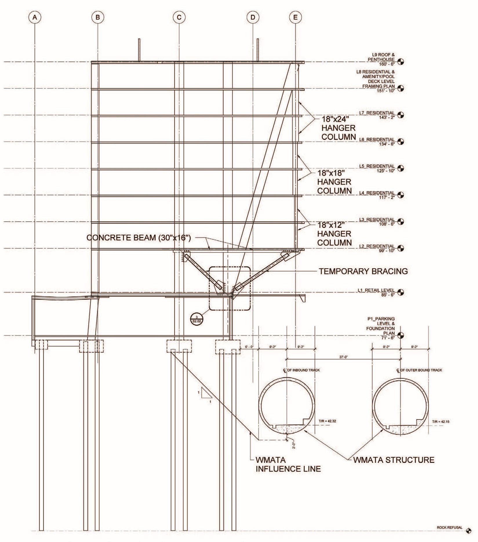
En esta obra, los ingenieros debieron enfrentar una situación inusual: levantar un edificio de nueve pisos directamente sobre los túneles activos de la línea Green del Metro, sin transmitirles ninguna carga adicional. La solución, de notable audacia conceptual y precisión técnica, consistió en colgar parte de la estructura desde su propia cubierta, una operación demandante tanto de inventiva como de una planificación minuciosa de la secuencia constructiva.
El proyecto forma parte de la Iniciativa Great Streets impulsada por la Oficina de Planificación local, orientada a revitalizar el corredor de la 7th Street y Georgia Avenue. The Langston, con una superficie total cercana a los 35.000 metros cuadrados, combina viviendas, locales comerciales y un nivel subterráneo de estacionamiento.
Su ubicación estratégica, frente a la estación Shaw/Howard University del Metro y próxima al histórico Teatro Howard, lo convierte en un destacado componente dentro del proceso de regeneración urbana del área. Pero lo que lo distingue no es solo su aporte urbano, sino el modo en que su estructura resuelve un problema de interferencia directa con la infraestructura de transporte existente.

Durante la fase de documentación constructiva, la firma original de ingeniería estructural cesó sus actividades, y el estudio SK&A Structural Engineers asumió el rol de ingeniero de registro. Además de completar el diseño y la documentación, el nuevo equipo debió ejecutar un exhaustivo proceso de ingeniería de valor bajo un cronograma muy reducido. Las posiciones y dimensiones de las columnas ya estaban fijadas por los proyectos arquitectónico y de instalaciones, por ende, las modificaciones debían respetar esos condicionantes. Aun así, el rediseño permitió reducir el espesor de las losas postensadas, eliminar una junta de hormigonado intermedia, optimizar la distribución del acero de refuerzo y mejorar la eficiencia de los tendones de postensado. El resultado presenta una estructura más liviana, económica y con menor huella de carbono incorporado.
La porción noreste del edificio se extendía directamente sobre la zona de influencia definida por la autoridad del metro (WMATA), un área donde cualquier carga adicional podría afectar la estabilidad de los túneles. Ante la imposibilidad de modificar la geometría arquitectónica, se adoptó una estrategia poco convencional: suspender la estructura desde arriba. Las losas de los niveles superiores descargan así en tensores de hormigón colgantes que trabajan a tracción. Estos tensores transmiten los esfuerzos a diagonales inclinadas de hormigón armado, las cuales conducen las cargas hasta fundaciones ubicadas fuera de la zona de influencia. La losa de cubierta actúa como elemento de anclaje superior y como punto de equilibrio del sistema. De este modo, el edificio parece flotar sobre la vereda y los túneles del metro, sin tocar el suelo.
La secuencia constructiva fue tan desafiante como la concepción estructural. Antes de completar la losa de cubierta, los tensores colgantes carecían de su apoyo superior definitivo, y el uso de apuntalamientos verticales convencionales habría generado una sobrecarga inaceptable sobre los túneles. Para resolverlo, se diseñó un sistema temporal de cerchas metálicas en voladizo que permitió invertir el flujo de cargas del edificio durante la construcción.
En esta condición provisoria, los tensores colgantes trabajaron a compresión, sosteniendo los niveles inferiores, hasta que la losa de techo fue hormigonada y endurecida. Una vez activado el sistema definitivo de tracción, las cerchas metálicas se retiraron y las fuerzas en los tensores se invirtieron, quedando el edificio finalmente suspendido.
El diseño de este sistema temporal también fue objeto de ingeniería de valor. SK&A evitó que los arriostramientos provisorios descargaran sobre el terreno, redirigiendo las cargas hacia la propia superestructura del edificio. Con ello se eliminó cualquier posibilidad de sobrecargar el subsuelo y se garantizó la integridad de los túneles durante todas las etapas de la obra.

La construcción subterránea agregó otro nivel de complejidad. La excavación y las fundaciones debían ejecutarse dentro de la zona de influencia del metro, donde los movimientos de suelo estaban severamente restringidos. El sistema de contención lateral incorporó puntales inclinados y bloques de reacción para evitar desplazamientos que pudieran comprometer los túneles.
Las condiciones geotécnicas resultaron desfavorables, lo cual obligó a utilizar fundaciones profundas. Se evaluaron caissons y pilotes perforados, optándose finalmente por estos últimos debido a su menor vibración, su equipo más compacto y su mayor velocidad de instalación. Sin embargo, durante la ejecución se hallaron restos de estructuras antiguas de ladrillo y hormigón, lo que obligó a rediseñar parcialmente la disposición de los pilotes y ajustar el tamaño de las zapatas combinadas sin alterar el equilibrio estructural general.
Desde el segundo nivel hasta la cubierta, el edificio utiliza losas postensadas de hormigón armado, mientras que el primer nivel se resolvió con losas convencionales reforzadas con capiteles. El espesor uniforme de 18 centímetros resultó un punto de equilibrio entre resistencia, economía y cumplimiento de las limitaciones de altura establecidas por el código urbano. En el marco de los objetivos de certificación LEED Silver, se incorporaron además estrategias de sostenibilidad las cuales incluyeron el uso de shotcrete en los muros de sótano, reduciendo así el consumo de madera y el tiempo de ejecución; la selección de materiales reciclados y regionales; sistemas HVAC de alta eficiencia; materiales interiores de bajas emisiones y un diseño de fachada capaz de aprovechar la iluminación natural.
Más allá del logro estructural, The Langston constituye un ejemplo de integración entre arquitectura, ingeniería y planificación urbana. Los locales comerciales en planta baja activan la vida peatonal, los retiros permiten incorporar vegetación y la volumetría respeta la escala del entorno. El proyecto se inserta en el tejido urbano no como un objeto aislado, sino como un componente de una estrategia pública más amplia orientada a mejorar la calidad de vida en los corredores urbanos de la capital estadounidense.
En términos técnicos, el proyecto representa una demostración de la capacidad de la ingeniería estructural para adaptarse a las restricciones más exigentes sin renunciar a la funcionalidad ni a la estética. La posibilidad de colgar parte de un edificio sobre un sistema de transporte activo, manteniendo la seguridad y la continuidad de ambos, sólo puede lograrse mediante un trabajo interdisciplinario de precisión, donde la coordinación entre arquitectos, ingenieros estructurales y contratistas es tan importante como la calidad del cálculo y del control de obra.














