Escuela Primaria VIDA
El diseño de esta escuela se basa particularmente en enfoques contemporáneos de la educación. Ofrece un entorno interior rico y diverso, donde tanto los alumnos más pequeños como los mayores pueden encontrar su propio lugar. El edificio se concibe así no solo como un espacio de aprendizaje.
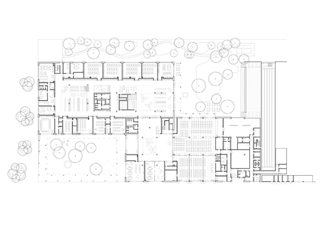
La escuela, organizada en torno a dos patios, evoca el gesto de unos brazos abiertos. El patio de acceso, orientado hacia el pueblo, es de carácter público y brinda un espacio acogedor para encuentros y reuniones. El segundo patio se abre hacia el predio escolar, generando un ámbito protegido destinado a la recreación activa de los niños o a eventos comunitarios.
El proyecto de esta nueva escuela en la pequeña ciudad de Chýně, República Checa, se apoya en un enfoque educativo contemporáneo y moderno. Los espacios compartidos —tanto interiores como exteriores— desempeñan un papel tan relevante en el proceso de aprendizaje como las aulas tradicionales.
La capacitación informal puede darse en alcobas a lo largo de los corredores, mientras que pequeños rincones ofrecen oportunidades para conversaciones tranquilas. Las salas de estudio presentan diversas configuraciones de asientos que favorecen distintos modos de concentración. La cubierta está concebida tanto para el juego como para el aprendizaje. De este modo, la escuela ofrece un rico mundo interior donde pueden encontrar su lugar tanto los alumnos más jóvenes como los adolescentes.
El edificio no solo sirve para la educación primaria, sino que también alberga programas vespertinos: actividades extracurriculares para los alumnos y propuestas educativas y deportivas para adultos.
El terreno, alargado y en pendiente, se ubica cerca del centro de Chýně. Durante un tiempo, la nueva escuela podrá quedar aislada en el borde del área urbanizada, pero con el tiempo se integrará a la trama edificada de la ciudad. Uno de los objetivos del diseño fue responder a ambas condiciones —el aislamiento temporal y la futura integración urbana— y dotar al sitio de un espacio público claramente definido y comprensible.
El concepto de dos patios —uno público y otro privado— define la organización básica del edificio. La parte norte alberga las aulas y el principal sector comunitario, mientras que la parte sur contiene las instalaciones deportivas, un auditorio y las áreas de apoyo necesarias.
La escuela presenta tres niveles, cuya composición en altura responde a la pendiente del terreno. El acceso directo es posible no solo desde la planta baja —al llegar desde el centro urbano—, sino también desde el primer piso, conectándose con el complejo deportivo. En el tercer nivel se propone un aula al aire libre, garantizando el acceso directo al exterior desde cada planta. La cubierta incluye una terraza exterior, aulas y canteros para actividades de jardinería.
El edificio puede operar en dos modos principales. Durante el régimen lectivo matutino, la totalidad de las instalaciones permanece plenamente abierta y en uso. Por la tarde, un modo de funcionamiento reducido habilita el acceso público únicamente a sectores seleccionados: espacios para talleres, la biblioteca, el gimnasio y el salón de usos múltiples, encargado también de recibir ocasionales eventos culturales vinculados al área del comedor.
El complejo deportivo incluye varias canchas: una pista de atletismo con un campo de fútbol integrado, instalaciones de apoyo, un túnel atlético y un área de refrigerio a lo largo de su lado este. Se prevén espacios para espectadores tanto mediante gradas a nivel de pista como en la cubierta del edificio de servicios, el cual funciona como tribuna. Un campo secundario de entrenamiento, accesible durante los recreos, se ubica entre la escuela y la pista.
El patio de acceso sirve a los alumnos, a los visitantes de los programas vespertinos y al público en general. Suma plataformas de descanso para adolescentes y superficies deportivas para los estudiantes más pequeños.
El segundo patio cuenta con mesas exteriores que amplían la capacidad del comedor. También ofrece espacio para el juego durante los recreos y el tiempo libre entre actividades de la tarde. En esta área se integran juegos, superficies blandas para saltar y correr, una pirámide de cuerdas y otros equipamientos. El acceso al patio interior es posible desde el hall de la escuela, el comedor y la cocina de prácticas.
La escuela se encuentra diseñada para cumplir con la clase de eficiencia energética A. La calefacción se resuelve mediante bombas de calor y todos los espacios cuentan con ventilación mecánica controlada. El balance energético se optimiza mediante paneles fotovoltaicos dispuestos en las cubiertas tanto del edificio principal como del bloque deportivo, junto con protecciones solares exteriores y un alto nivel de aislamiento térmico.
La estructura es de hormigón armado con cerramientos de mampostería, lo que aporta masa térmica y estabilidad. La fachada exterior se encuentra revestida con elementos cerámicos. Las marquesinas a lo largo de la fachada y los “nidos de árboles” ajardinados ayudan a prevenir la formación de islas de calor.
Ficha Técnica:
Obra: Escuela Primaria VIDA.
Ubicación: Pražská 1111, 253 03 Chýně, República Checa.
Cliente: Asociación de Municipios de Chýně y Hostivice.
Estudio: OVA.
Autores: Jiří Opočenský, Štěpán Valouch y Ondřej Králík.
Equipo de proyecto: Norbert Lichý, Michaela Křižáková, Barbora Juríčková, Romana Bedrunková, Jakub Masný y Jan Hájek.
Ingeniería civil: OMEGA Project, Jan Škopek y Vítězslav Lacina.
Contratista general: PKS stavby + Metrostav.
Fotografía: Alex Shoots Buildings.
































