Escuela Primaria VIA
Ubicado cerca del centro histórico de Beroun, la primera etapa del proyecto para el campus escolar VIA, el cual comprende un jardín de infantes y una importante escuela primaria, transforma un antiguo predio industrial en un espacio dinámico dedicado al aprendizaje, el juego y la vida comunitaria.
El nuevo edificio escolar del siglo XXI constituye una base sólida para la educación moderna, donde la individualidad, la creatividad y la conciencia ambiental se convierten en valores clave. En el terreno de un antiguo sitio industrial abandonado, ubicado en el área central ampliada de Beroun, se está construyendo una nueva escuela enfocada en la educación contemporánea y las necesidades actuales de aprendizaje.
Este establecimiento privado de nivel inicial y primario promueve la individualidad y la creatividad, al tiempo que prioriza la sostenibilidad ambiental. El proyecto forma parte de la primera etapa de revitalización del antiguo terreno de la fábrica textil Tiba, impulsando la conversión de esta zona en un entorno urbano activo y acogedor.
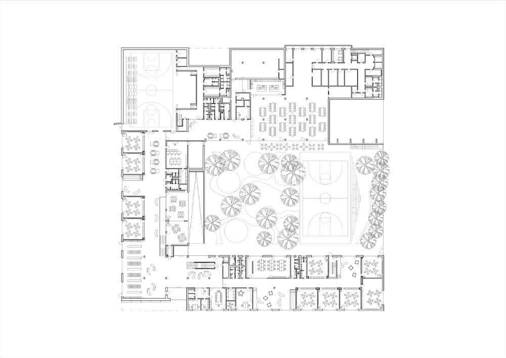
El campus se concibe como un edificio de tres niveles con alas dispuestas alrededor de un patio central en forma de “U”. El diseño aprovecha la modelación del terreno para crear la ilusión de una estructura de dos plantas. La vegetación es un elemento protagonista que impregna todo el conjunto: abundantes árboles y pastos rodean el edificio y llenan el patio, el cual funciona como el corazón verde del complejo. Este espacio incluye césped, árboles y un jardín educativo con canteros elevados y un invernadero, mientras que los patios de juegos se extienden hacia una ladera cubierta de pasto.
Las amplias superficies vidriadas permiten que la vibrante vida del campus sea visible desde todos los ángulos, y en los niveles superiores, jardineras con gramíneas descansan sobre alféizares de hormigón. Las cubiertas alojan tanto techos verdes intensivos con arbustos y pequeños árboles como áreas extensivas de vegetación, complementadas con mobiliario exterior, zonas de ejercicio y elementos lúdicos que fomentan el movimiento, la creatividad y la interacción. Todo el concepto se unifica mediante una fachada lúdica de chapa blanca acanalada, capaz de enlazar armónicamente todas las partes en un centro cotidiano de aprendizaje, juego y vida social.
El ingreso a la escuela primaria conduce al hall principal, que incluye una escalera central, un bloque administrativo y vestuarios. A lo largo de los pasillos norte y sur se disponen las aulas de los primeros grados, junto con espacios compartidos destinados al aprendizaje alternativo, la relajación y el juego. Los cursos superiores se ubican en el ala sur del segundo piso, accesible a través de la escalera central. En esta ala, el corredor se amplía con bahías concebidas para el aprendizaje alternativo. Bajo la grada cubierta del tercer nivel se encuentran un aula al aire libre, un patio de servicio y el acceso a la terraza de la azotea.
El ala norte alberga un salón multifuncional, un comedor con servicios complementarios y las áreas operativas y técnicas responsables de brindar soporte a toda la escuela, mientras que los niveles superiores están destinados al jardín de infantes. Este cuenta con un acceso independiente que garantiza un flujo seguro y autónomo para los niños más pequeños, e incluye aulas, espacios de actividades y una terraza exclusiva que funciona como área exterior de aprendizaje y recreación. Grandes ventanales y lucernarios inundan los espacios con luz natural, mientras las visuales hacia el patio y la vegetación integran el jardín de infantes al conjunto del campus.
El interior del edificio resalta su carácter representativo mediante una cuidada selección de materiales, especialmente la madera y los pisos de terrazo. Se presta especial atención a la vida propia de los pasillos, que ofrecen amplios espacios con diferentes tipos de asientos y vistas hacia las aulas. Estos corredores fueron diseñados para que los niños se encuentren, jueguen y estudien de forma autónoma, además de ofrecer oportunidades para el aprendizaje alternativo o actividades extracurriculares fuera de las aulas principales. Las aulas y laboratorios de la escuela primaria son espacios amplios y flexibles, con distintas configuraciones de mobiliario y moderno equipamiento.
FICHA TÉCNICA:
Obra: Campus escolar VIA.
Ubicación: Na Dražkách 2142, 266 01 Beroun, República Checa.
Proyecto: Estudio OVA.
Autores: Jiří Opočenský, Štěpán Valouch y Ondřej Králík.
Equipo de diseño: Petr Bočan, Jakub Neumann y Martina Formánková.
Cliente: Český spořínek.
Ingeniería civil: AED Project.
Contratista general: STEP.
Fotografía: BoysPlayNice.
































